HollowayTop

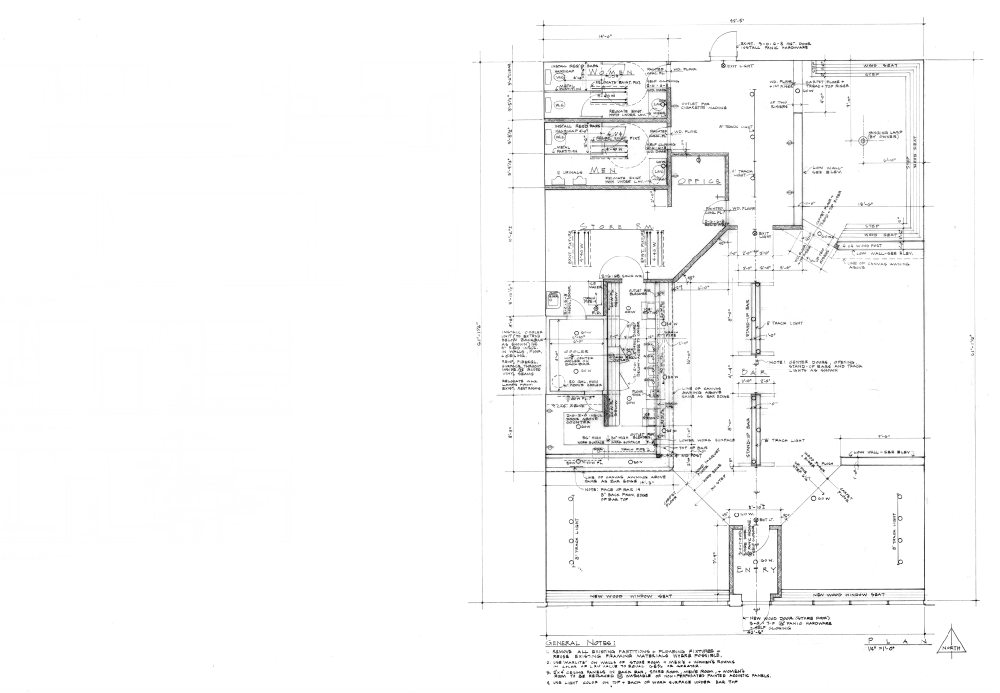
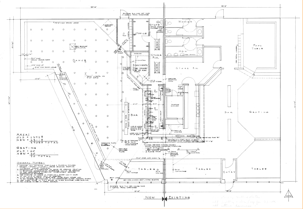
The Boulder Express

The First LGBT Dance Club in the University Town of Boulder, Colorado, 1982

 
  • My Gallery: Image
  • My Gallery: Image
  • My Gallery: Image
  • My Gallery: Image
  • My Gallery: Image
  • My Gallery: Image
  • My Gallery: Image
  • My Gallery: Image
  • My Gallery: Image
  • My Gallery: Image
Thumbnail panels:
Now Loading
© 2022, Dennis R. Holloway Architect