HOME
SUN-TEMPERED ARCHITECTURE
ARCHITECTURE IN NATIVE AMERICAN IDIOM
VIRTUAL REALITY ARCHAEOLOGY
URBAN DESIGN & EARLY WORKS
ABOUT THE ARCHITECT
CONTACT
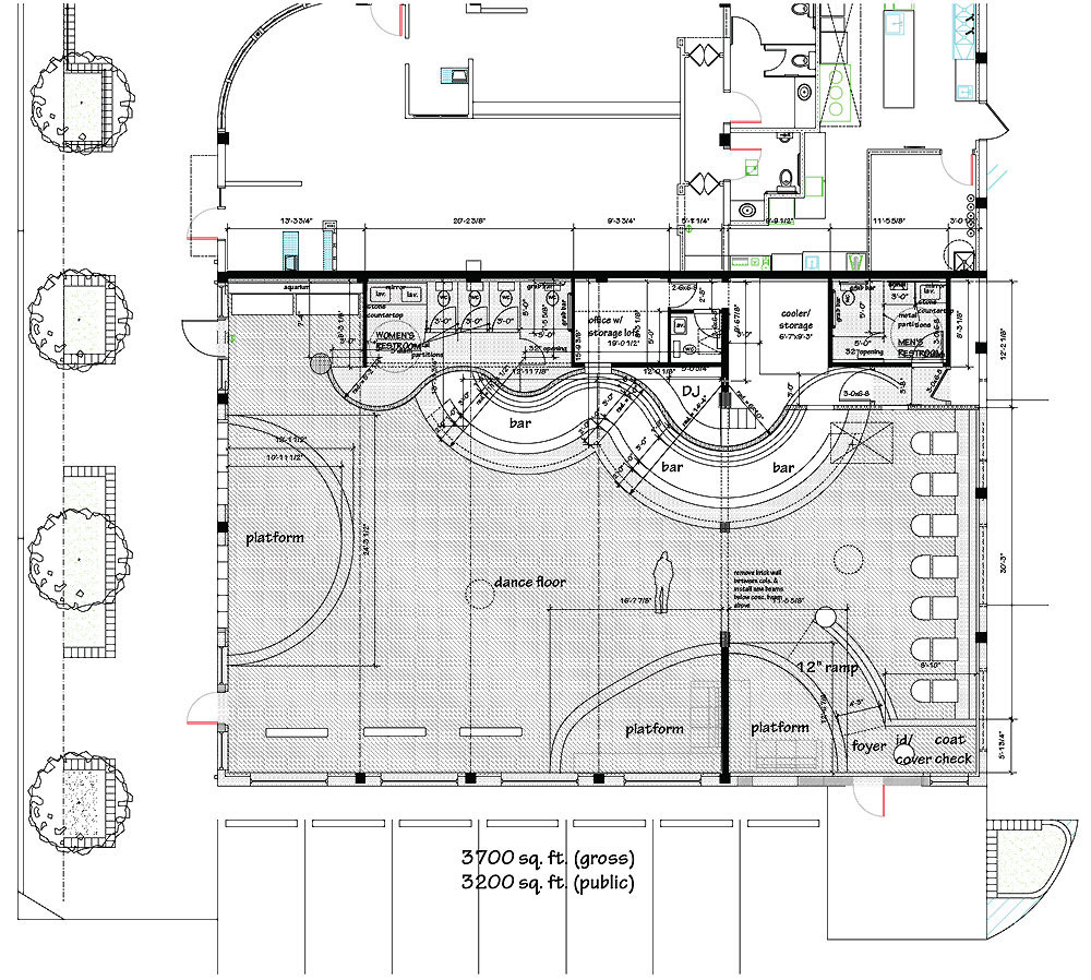
A Project for a Women's Dance Club in Albuquerque, NM, 2010
Thumbnail panels:
© 2009, Dennis R. Holloway Architect