DRHGreytop

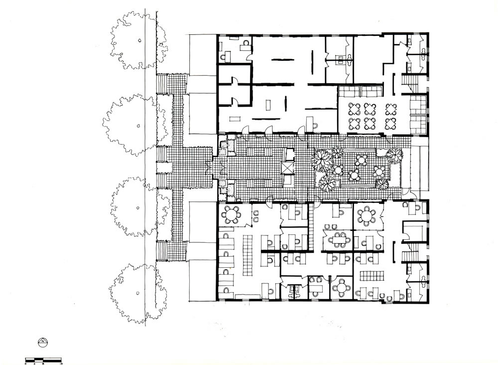
Ogden Street Conversion: Apartments-to-Office Solar Retrofit, 1983

The developer's intent was to add a passive solar link between these two typical central Denver apartment buildings, and convert them to office space. A glazed roof over the new central atrium allows the south-facing masonry wall of the north building to act as a thermal storage wall.

  • Ogden Street elevation proposal.
  • Longitudinal cross section through passive solar atrium.
  • My Gallery: Image
    Main floor plan.
  • My Gallery: Image
    Typical upper level plan.
Thumbnail panels:
Now Loading

 

© 2009, Dennis R. Holloway Architect