 CG model interior view of the Central Solarium Garden, a space where members of the community can grow their own food as part of the therapy process. Each individual suite has its own window herb garden solarium, overlooking the Central Solarium. This project will integrate the technologies of passive and active solar, natural ventilation, solar-electric, wind, water conservation, and waste recycling to achieve maximum off-grid sustainability.

The passive solar horse barn shown in the foreground of this view, is the focus of horse husbandry as a potent form of medicine, as a major part of the healing process for members of the community. A running and horse-riding path encircles the Village Center.
 CG model of the Village Center, containing, from right-to-left, the Horse Stables, the Central Great House/Solarium, Spiritual Pavilion, Gymnasium and Natatorium, and Guest House for visiting family members. Wind-electric generators are located on the ridge behind the Village Center. The horse-riding path encircles the Center.
 North-south cross-section through the Village Center.
 Village Center Plans.
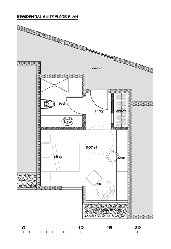
 Floor Plan for Individual Suite.
Thumbnail panels:
|