DRHGreytop

Unitarian Church Additions, Boulder, Colorado

Consulting Structural and Energy dEngineer: Jon Giltner

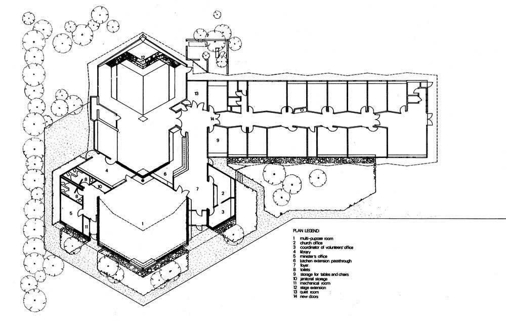
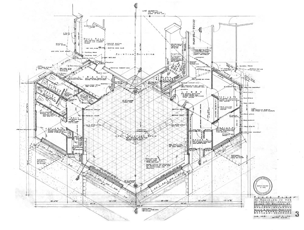
The Church Building Committee requested the passive solar addition of a multipurpose room and offices to the south of the existing sanctuary. The design incorporates Trombe walls and direct gain passive solar fenestraion of a clerestory through which sunlight falls on the stone masonry facade of the existing building.

 
  • My Gallery: Image
  • My Gallery: Image
  • My Gallery: Image
  • My Gallery: Image
  • My Gallery: Image
  • My Gallery: Image
  • My Gallery: Image
  • My Gallery: Image
  • My Gallery: Image
  • My Gallery: Image
  • My Gallery: Image
  • My Gallery: Image
Thumbnail panels:
Now Loading
© 2022, Dennis R. Holloway Architect