DRHGreytop

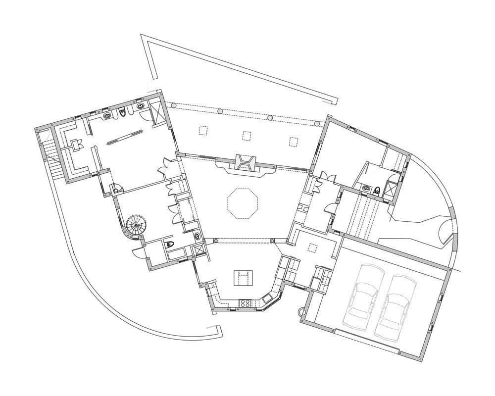
Weber and Ryan Residences, Taos, New Mexico, 2003-2007

Four phases of design evolution for an adobe retirement home.

  • My Gallery: Image
  • My Gallery: Image
  • My Gallery: Image
  • My Gallery: Image
  • My Gallery: Image
  • My Gallery: Image
  • My Gallery: Image
  • My Gallery: Image
  • My Gallery: Image
  • My Gallery: Image
  • My Gallery: Image
  • My Gallery: Image
  • My Gallery: Image
  • My Gallery: Image
  • My Gallery: Image
  • My Gallery: Image
  • My Gallery: Image
  • My Gallery: Image
Thumbnail panels:
Now Loading
© 2009, Dennis R. Holloway Architect